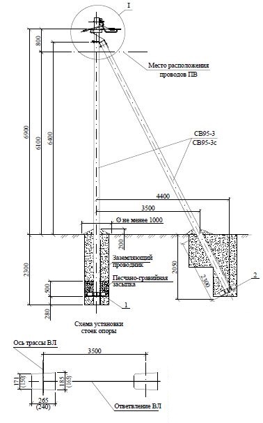
АО 31

Чертеж изделия:
Характеристики изделия:
ПараметрЗначение
длина9200 мм
ширина185 мм
высота265 мм
масса900 кг
нормативный документШифр 26.0085

АО 31  Ответвительные анкерные одноцепные опоры Шифр 26.0085.