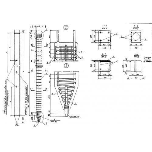
С 60-30
Характеристики изделия:
| Параметр | Значение |
|---|---|
| длина | 6000 мм |
| ширина | 300 мм |
| высота | 300 мм |
| вес | 1400 кг |
| серия | 3.501.1-153 |
Цена:
Рассчитать стоимостьС 60-30 Сваи с прямоугольным сечением по серии 3.501.1-153.
| Параметр | Значение |
|---|---|
| длина | 6000 мм |
| ширина | 300 мм |
| высота | 300 мм |
| вес | 1400 кг |
| серия | 3.501.1-153 |
С 60-30 Сваи с прямоугольным сечением по серии 3.501.1-153.
