БК 6 балки подкрановые
Характеристики изделия:
| Параметр | Значение |
|---|---|
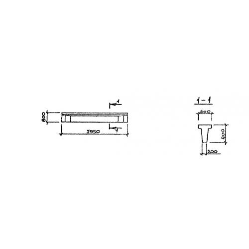
| длина | 5950 мм |
| ширина | 600 мм |
| высота | 800 мм |
| масса | 3500 кг |
| нормативный документ | Серия 1.426.1-4 |
Цена:
Рассчитать стоимостьБК 6 Подкрановые балки Серия 1.426.1-4.
| Параметр | Значение |
|---|---|
| длина | 5950 мм |
| ширина | 600 мм |
| высота | 800 мм |
| масса | 3500 кг |
| нормативный документ | Серия 1.426.1-4 |
БК 6 Подкрановые балки Серия 1.426.1-4.
