К 22 колонны
Характеристики изделия:
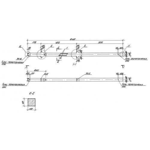
| Параметр | Значение |
|---|---|
| длина | 12425 мм |
| ширина | 400 мм |
| высота | 400 мм |
| масса | 5200 кг |
| нормативный документ | Серия 1.420-35.95 |
Цена:
Рассчитать стоимостьК 22 Колонны Серия 1.420-35.95.
| Параметр | Значение |
|---|---|
| длина | 12425 мм |
| ширина | 400 мм |
| высота | 400 мм |
| масса | 5200 кг |
| нормативный документ | Серия 1.420-35.95 |
К 22 Колонны Серия 1.420-35.95.
