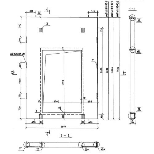
ПШЛ 100-42

Чертеж изделия:
Характеристики изделия:
ПараметрЗначение
длина2510 мм
ширина140 мм
высота4180 мм
вес2600 кг
серия1.289.1-2

ПШЛ 100-42 Панели шахт лифтов по серии 1.289.1-2.