1ЛП 22.12

Чертеж изделия:
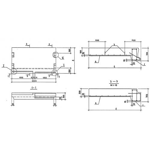
Характеристики изделия:
ПараметрЗначение
длина2200 мм
ширина1300 мм
высота320 мм
масса1485 кг
нормативный документСерия 1.152.1-8

1ЛП 22.12  Лестничные площадки плоские Серия 1.152.1-8.