ВБН 12.33.5

Чертеж изделия:
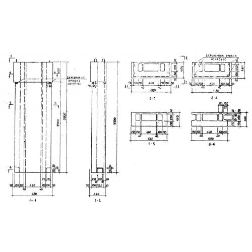
Характеристики изделия:
ПараметрЗначение
длина1180 мм
ширина460 мм
высота3300 мм
вес1335 кг
серия1.134-3

ВБН 12.33.5 Наружные вентиляционные блоки по серии 1.134-3.