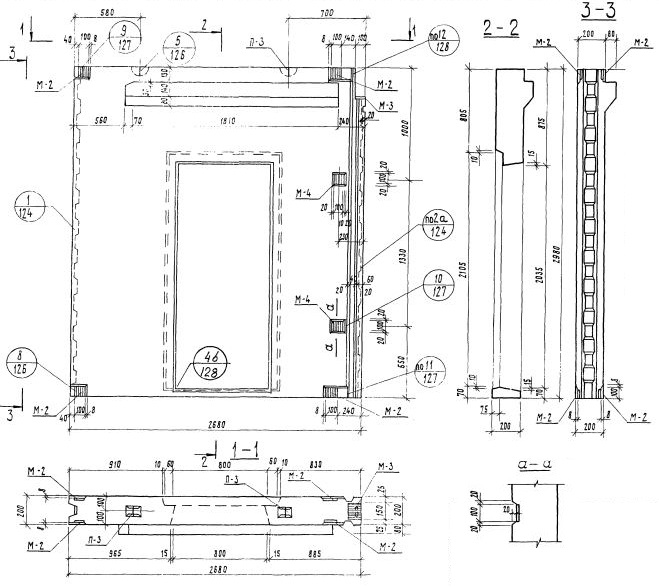
СВБЛ-27.2.30т-5п

Чертеж изделия:
Характеристики изделия:
ПараметрЗначение
Длина2680 мм
Ширина200 мм
Высота2980 мм
Масса3100 кг
Нормативный документСерия 1.134-1

Блоки внутренних  стен  по Серии 1.134-1.

СБВЛ-27.2.30т-5п   Стеновой блок внутренний лестничный.