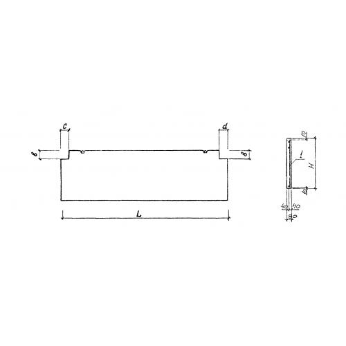
ПГ 57.15 панели перегородки
Характеристики изделия:
| Параметр | Значение |
|---|---|
| длина | 5710 мм |
| ширина | 80 мм |
| высота | 1485 мм |
| масса | 1090 кг |
| нормативный документ | Серия 1.030.9-2 |
Цена:
Рассчитать стоимостьПГ 57.15 Перегородки панельные зданий промышленных и сельскохозяйстыенных предприятий Серия 1.030.9-2.
