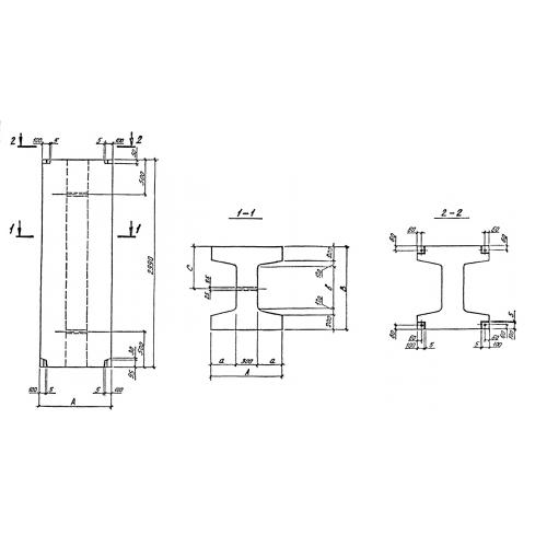
ПБ 9.14.30

Чертеж изделия:
Характеристики изделия:
ПараметрЗначение
длина900 мм
ширина1400 мм
высота2990 мм
вес5620 кг
серия0-221-84

ПБ 9.14.30 Блоки промежуточные по серии 0-221-84.