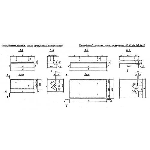
ВП 49

Чертеж изделия:
Характеристики изделия:
ПараметрЗначение
длина4900 мм
ширина600 мм
высота360 мм
масса2520 кг
нормативный документАльбом РК 2303-86

ВП 49  Верхняя плита (плита перекрытия)  Альбом РК 2303-86.